Trento - Prestigioso Ufficio 260 mq in Torre Verde

In affitto
Trento (Centro storico) - Piazza Raffello Sanzio, 3
Prezzo riservato
Ufficio
Categoria
260
m2
8
Locali
6
Camere
2
Bagni
Descrizione
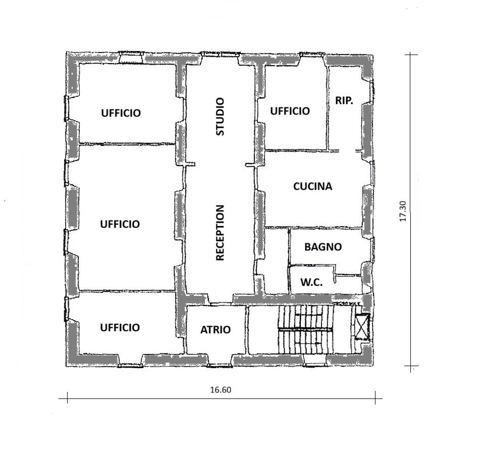
Trento, piazza Raffaello Sanzio, di fronte alla Torre Verde e adiacente al parcheggio Autosilo Petrarca, affittasi ampio, luminoso ed elegante ufficio di 260 mq lordi.

A secondo piano all'interno di una caratteristica Villa Liberty dei primi del '900, l'ufficio occupa l'intero piano della casa, libero quindi sui 4 lati, ed è accessibile con ascensore.

L'immobile è composto da atrio, una reception ampia ed aperta nella parte centrale, cinque splendidi e abbondanti uffici, oltre ad una grande cucina già arredata, e doppi servizi entrambi finestrati, completi di vasca e doccia.

La palazzina Liberty, il contesto a ridosso del centro storico, i materiali antichi recuperati ed i decori presenti, tutti elementi che concorrono ad innalzare il prestigio ed il valore dell'ufficio. Sono stato eseguiti lavori di aggiornamento dell'impianto elettrico, tinteggiatura, sono stati levigati e lucidati i pavimenti.

Riscaldamento centrale, spese condominiali comprensive di riscaldamento, acqua calda, ascensore, pulizie e manutenzione pari a Euro 8.000/anno.

Informazioni in ufficio

Miori Immobiliare 339 1389537

Caratteristiche principali
Codice:
A000061
Città:
Trento (Centro storico)
Categoria:
Ufficio
Locali:
8
Camere:
6
Bagni:
2
Mq:
260
Piano:
2
Classe energetica:
C
Stato Immobile:
Ottimo
Grado:
Signorile
Posizione:
Centro Storico
Panorama:
Vista Monumento
Orientamento:
Nord Ovest Sud Est
Lati Liberi:
4
Arredi:
Solo Cucina
Riscaldamento:
Centralizzato
Tipo Riscaldam.:
Caldaia
Tipo Impianto:
Radiatori
Fonte Energetica:
Metano
Acqua Calda:
Centralizzata
Infissi:
Legno Doppio Vetro
Serramenti:
Buono
Pavim. Cucina:
Ceramica
Pavim. Bagno:
Ceramica
Pavimento:
Parquet
Cauzione:
Fidejussione
Canoni Anticipati:
Un Mese
Tipo Contratto:
6+6 Anni
Accesso Disabili:
No
Tipo Registr.:
Tradizionale
Accessori
Ascensore
Cancello Elettrico
Doppi Vetri
Passaggio Automobilistico
Passaggio Pedonale
Ripostiglio
Mappa
Planimetrie
Cookie preference