Trento - Vendita Mura Ristorante con Trasformazione in Abitativo

In vendita
Trento (Centro storico)
450.000 €
Negozio
Categoria
370
m2
6
Locali
Descrizione
Trento, a ridosso del Centro Storico nel quartiere di San Martino, vendesi mura del ristorante con licenza, cespiti e arredi, e con interessante possibile cambio destinazione d’uso e trasformazione ad uso abitativo!

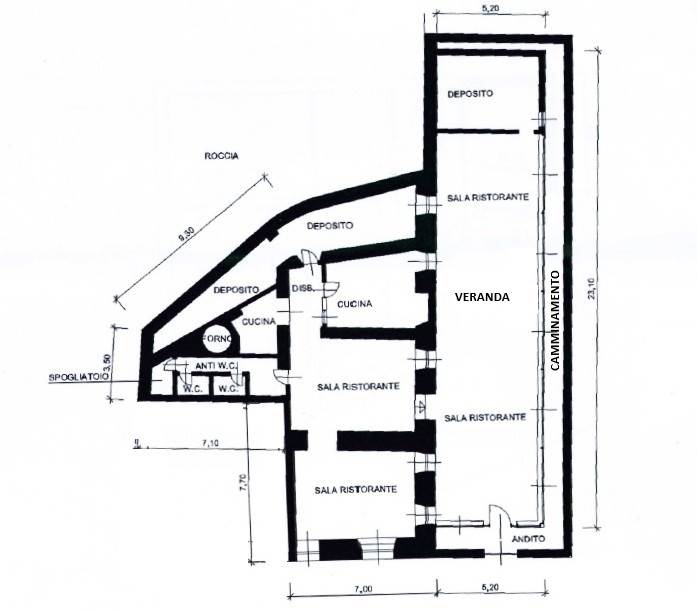
Il noto ristorante di Trento ha una dimensione lorda di 175 mq, con annessa una grande veranda coperta e autorizzata di ulteriori 185 mq lordi che permette lo sfruttamento della volumetria.

Il locale principale è diviso sulle due ampie sale ristorante, con la cucina ed il forno per le pizze, i doppi servizi e spogliatoio, ed un abbondante deposito.

La parte esterna è prevalentemente occupata dalla sala ristorante in veranda con un camminamento esterno sul lato sud, ed un ulteriore spazio a deposito. A completare la proprietà, una soffitta nel sottotetto di 20 mq.

Termoautonomo con spese condominiali minime, il locale si adatta perfettamente a chi intende proseguire l’attività di ristorazione con i sapori del Trentino e clientela storica acquisita, ma è perfetto anche e soprattutto per chi vuole investire su un immobile di grandi dimensioni a ridosso del centro di Trento per ricavarne abitazioni per studenti!

Euro 450.000


Informazioni e visite: Miori Immobiliare 339 1389537
Caratteristiche principali
Codice:
V000173
Città:
Trento (Centro storico)
Categoria:
Negozio
Locali:
6
Mq:
370
Piano:
Terra
Classe energetica:
C
Stato Immobile:
Buono
Planimetrie
Cookie preference