Vezzano - Nuovo Tre Stanze con Giardino e Garage

In vendita
Vallelaghi - Via Roma , 69
350.000 €
Appartamento
Categoria
170
m2
4
Locali
3
Camere
2
Bagni
1
Box
2
Posti auto
Descrizione
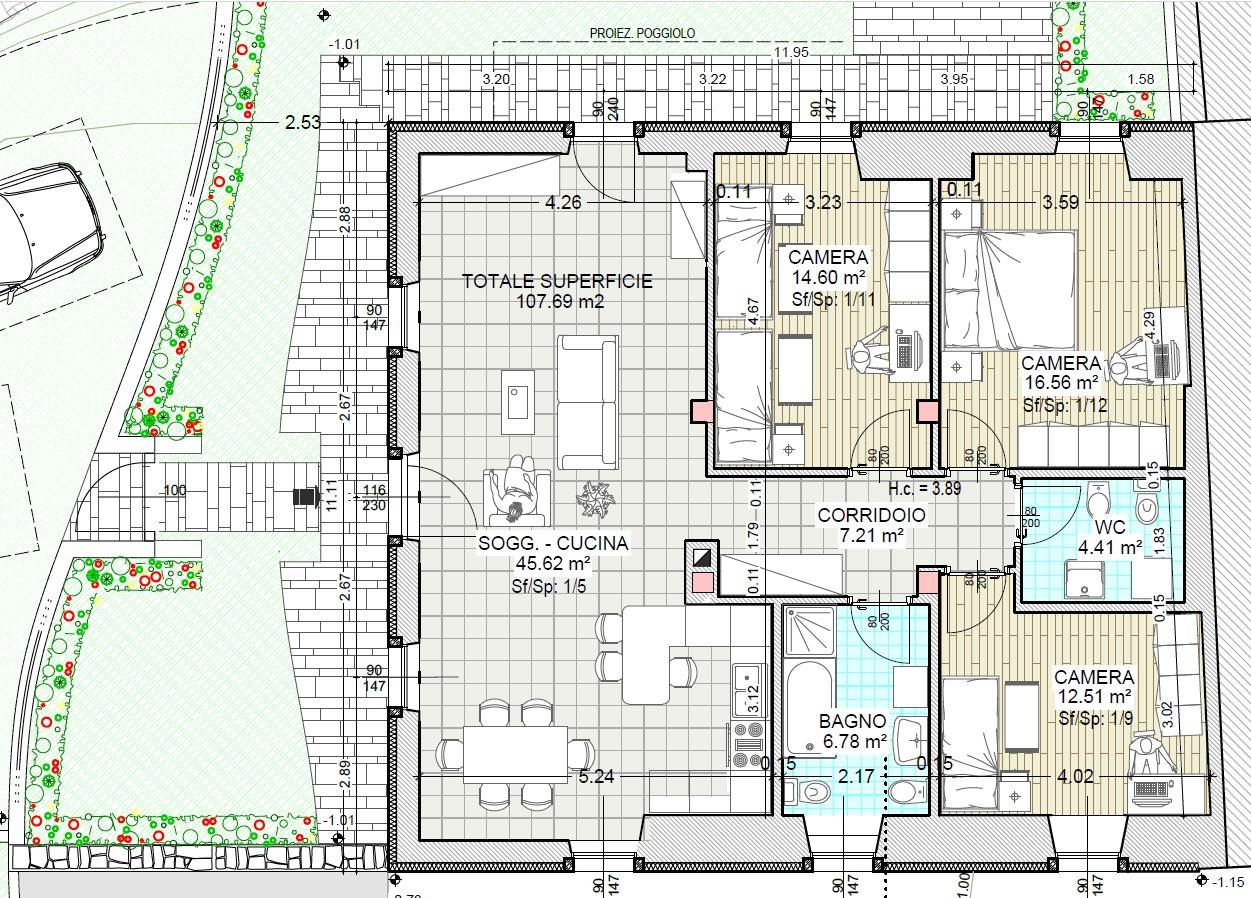
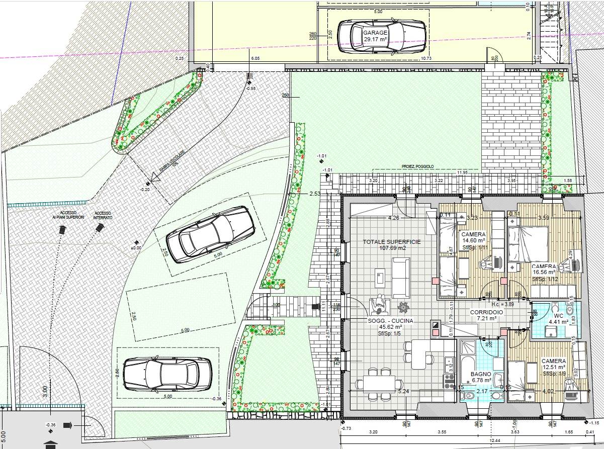
Vezzano, nel cuore della Valle dei Laghi, in posizione isolata rispetto all’abitato, sulla strada per la Val di Cavedine, vendesi in esclusiva appartamento a piano terra di 125 mq lordi, pari a 107 mq utili, con giardino sui due lati, garage doppio, cantina e spazio di parcheggio!

Palazzina in fase ultima di ristrutturazione in classe A+, di sole 4 unità abitative, ultimo appartamento disponibile! Consegna chiavi in mano prevista per primavera- estate 2026, con possibilità di scelta delle finiture a piacere dell’acquirente!

Pannelli fotovoltaici, pompa di calore, cappotto termico, serramenti triplo vetro, riscaldamento a pavimento, sono elementi essenziali ed imprescindibili per questo tipo di costruzione, atti a portare il maggior comfort e benessere per l’acquirente. Inoltre, l'appartamento dispone di canna fumaria.

Appartamento a piano terra, libero sui 3 lati, con dimensione di 107 mq utili con ingresso indipendente, ampio soggiorno con angolo cottura di 45 mq, disbrigo, tre stanze da letto (due matrimoniali di 16mq e 14 mq, e una doppia di 12 mq), doppi servizi. Giardino privato di 135 mq (con una piccola servitù) disposto sui due lati dell’appartamento. Garage doppio di 29 mq utili disposto in lunghezza con accesso diretto al giardino privato e comoda cantina sottoscala, oltre ad un abbondante spazio (50 mq) di parcheggio privato per 2-3 automobili di fronte alla casa.

Perfetta per chi cerca grandi dimensioni e spazi esterni, in una casa moderna e di nuova concezione!

Euro 350.000

Informazioni e Visite: Miori Immobiliare 339 1389537
Caratteristiche principali
Codice:
V000175
Città:
Vallelaghi
Categoria:
Appartamento
Locali:
4
Camere:
3
Bagni:
2
Mq:
170
Box:
1
Mq Box:
30
Posti auto:
2
Mq Giardino:
135
Piano:
Terra
Classe energetica:
A+
Stato Immobile:
In Costruzione
Grado:
Signorile
Posizione:
Periferia
Panorama:
Vista Monti
Orientamento:
Est Nord Ovest
Lati Liberi:
3
Giardino:
Privato
Arredi:
Non Arredato
Tipo Soggiorno:
Soggiorno
Tipo Cucina:
Angolo Cottura
Riscaldamento:
Conta Calorie
Tipo Riscaldam.:
Pompa di Calore
Tipo Impianto:
Pavimento
Fonte Energetica:
Fotovoltaico
Acqua Calda:
Centralizzata a Pannelli
Raffrescamento:
Predisposizione
Infissi:
Legno Triplo Vetro
Serramenti:
Nuovo
Persiana:
Oscurante Legno
Pavim. Giorno:
Personalizzato
Pavim. Notte:
Personalizzato
Pavim. Cucina:
Personalizzato
Pavim. Bagno:
Personalizzato
Accesso Disabili:
No
Accesso interno disabili:
Pieno accesso
Isolamento:
Presente
Isolamento termico:
Cappotto esterno
Spessore cappotto (cm):
12
Accessori
Bagno Handicap
Fibra Ottica
Impianto Fotovoltaico
Porta Blindata
Tripli Vetri
Mappa
Planimetrie
Cookie preference