Masi Vigo Cavedine - Schiera Centrale con Giardino al Grezzo

In vendita
Cavedine - Via Masi di Sotto, 13
169.000 €
Porzione Villa
Categoria
170
m2
4
Locali
2
Camere
3
Bagni
2
Box
2
Posti auto
Descrizione
Masi di Vigo Cavedine, in posizione tranquilla e riservata a 15 km da Arco e Riva del Garda, vendesi casa a schiera centrale con giardino, indipendente e disposte su 3 livelli, completa di garage doppio, balconi, posti auto!

La casa viene venduta allo stato grezzo, come da foto e video, condizione che permette la miglior scelta all’acquirente per disposizione spazi interni, materiali, impianti e finiture!

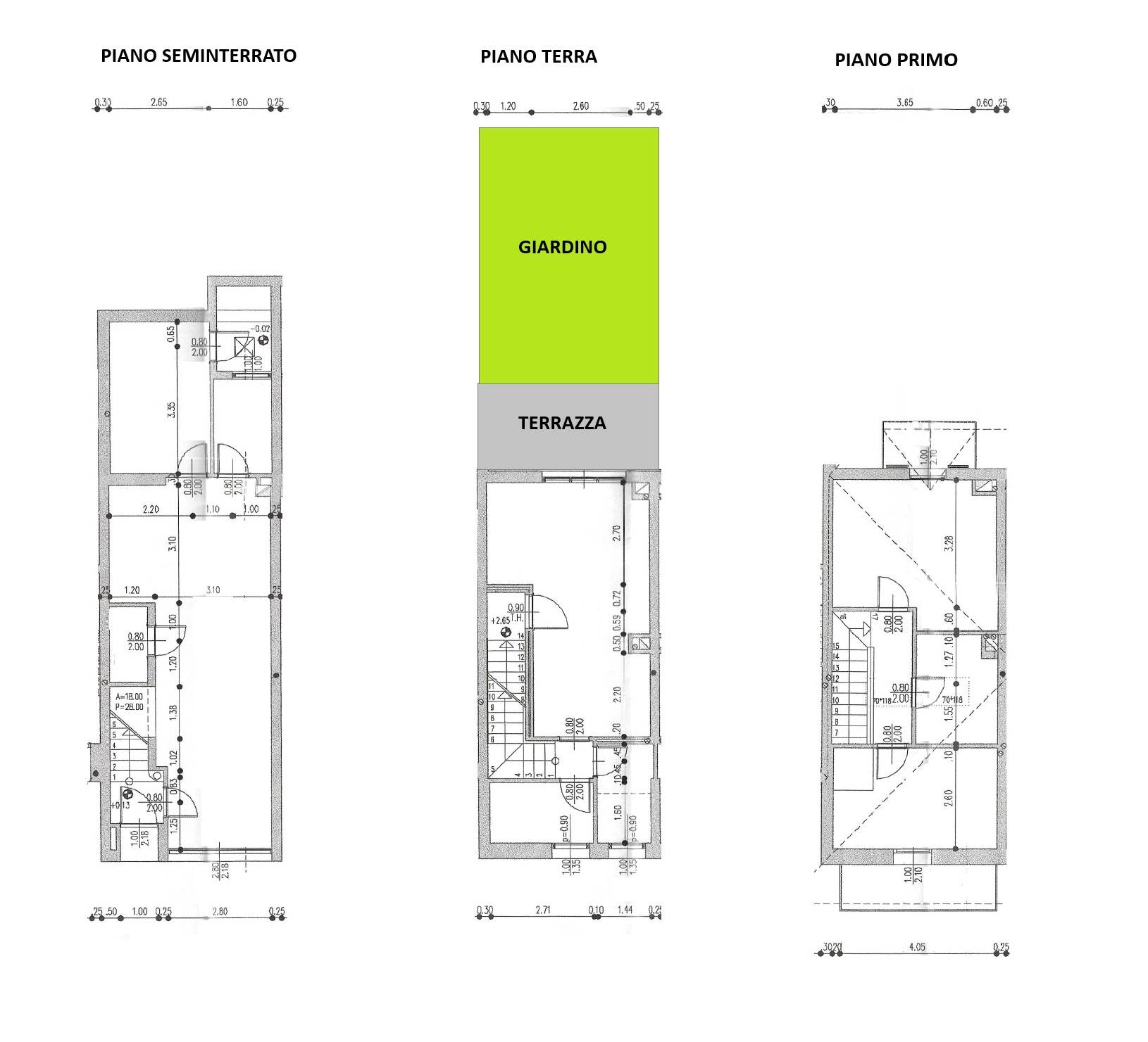
La serie di quattro schiere è stata edificata nel 2006, all'ingresso dell'abitato in un contesto grazioso e soleggiato. Esposizione nord-sud, l’immobile è così composto:

- piano seminterrato 55 mq utili: ingresso indipendente veicolare e pedonale, spazio ideale per un garage doppio in lunghezza, una cantina o taverna con bocca di lupo, oltre a bagno e locale caldaia; sono presenti inoltre due posti auto privati esterni;

- piano terra: ampio open space di 40 mq utili con foro per ampia vetrata a sud sul terrazzo/giardino di 30 mq; a questo piano verrà la futura zona giorno, accogliente e luminosa, con annesso bagno e all’occorrenza locale pluriuso;

- piano primo di 40 mq utili: il piano sottotetto con legno e travi a vista prevede la zona notte, due ampie stanze ognuna con balcone, bagno con velux o anche doppi servizi;

Il prezzo si intende per immobile allo stato attuale; precedenti preventivi hanno ipotizzato spese di 180-200.000€ per completare la casa con efficentamento energetico, pompa di calore, pannelli fotovoltaici (tetto di proprietà), riscaldamento e raffrescamento a pavimento..

La casa ideale per chi vuole creare un ambiente su misura per sé, con le proprie idee ed i propri spazi!


Prezzo: Euro 169.000

Informazioni e visite: Miori Immobiliare 339 1389537
Caratteristiche principali
Codice:
V000180
Città:
Cavedine
Categoria:
Porzione Villa
Locali:
4
Camere:
2
Bagni:
3
Mq:
170
Box:
2
Mq Box:
40
Posti auto:
2
Mq Giardino:
30
Balconi:
2
Mq Balcone:
9
Terrazzi:
1
Classe energetica:
Non classificabile
Stato Immobile:
Come da Origini
Grado:
Signorile
Posizione:
Montagna
Panorama:
Vista Aperta
Orientamento:
Sud Nord
Lati Liberi:
2
Giardino:
Privato
Arredi:
Non Arredato
Tipo Soggiorno:
Soggiorno
Tipo Cucina:
Abitabile
Riscaldamento:
Autonomo
Accessori
Camino
Ripostiglio
Mappa
Video
Cookie preference